Beschrijving
Hoekwoning met tuin, achterom en volop potentie aan de Ottergracht 22 – Rotterdam
Bent u een starter met visie of een handige koper die kansen ziet? Dan is deze hoekwoning aan de Ottergracht 22 een unieke mogelijkheid. De woning dient te worden opgeknapt, maar biedt juist daardoor de perfecte basis om volledig naar eigen smaak en inzicht te transformeren tot een eigentijds en comfortabel thuis.
Indeling en mogelijkheden
De begane grond is momenteel ingedeeld met een woonkamer, aparte slaapkamer, keuken en badkamer. Deze opzet is functioneel, maar sluit niet volledig aan bij de woonwensen van nu. Juist hier ligt de kracht van deze woning: door de woonkamer en slaapkamer samen te voegen, creëert u eenvoudig een royale en lichte leefruimte met een moderne open indeling.
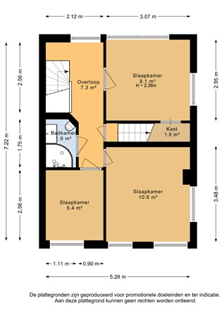
Op de eerste verdieping bevinden zich drie slaapkamers en een compacte badkamer – ideaal voor een gezin, thuiswerkplekken of een slimme herindeling. De zolderverdieping beschikt over een ruime vierde slaapkamer, wat extra flexibiliteit biedt.
Een kans voor starters en waardezoekers
Deze woning is bij uitstek geschikt voor starters die nét even verder kijken. In plaats van instapklaar koopt u hier potentie: de mogelijkheid om uw eigen woonwensen te realiseren én tegelijkertijd waarde toe te voegen. Met de juiste aanpak maakt u van deze woning een eigentijds thuis dat volledig aansluit bij uw levensfase en stijl.
Buitenruimte
De woning beschikt over een fijne tuin met achterom – ideaal voor fietsen, ontspanning of een gezellige buitenruimte. De aanwezige schuur biedt praktische extra bergruimte.
De buurt: rustig, groen en goed bereikbaar
De Ottergracht ligt in een prettige en rustige woonomgeving in Rotterdam. In de directe omgeving vindt u winkels, scholen en sportvoorzieningen. Daarnaast zijn openbaar vervoer en uitvalswegen goed bereikbaar, waardoor u snel in het centrum bent.
De wijk combineert een gemoedelijke sfeer met de voordelen van de stad – een fijne plek om te wonen en te groeien.
Kortom
Een hoekwoning met karakter, ruimte en vooral veel potentie. Dé kans voor kopers die hun eigen droomwoning willen realiseren en tegelijkertijd investeren in de toekomst.