Beschrijving
Te huur: instapklare en duurzaam gerenoveerde eengezinswoning (124 m²) met 4 slaapkamers en zonnige tuin – 2e Carnissestraat 19
Deze volledig hoogwaardig gerenoveerde en verduurzaamde tussenwoning (energielabel A) combineert modern wooncomfort met een praktische indeling en een verrassend lichte leefruimte. Met maar liefst vier volwaardige slaapkamers, een luxe afwerkingsniveau en een onderhoudsvriendelijke tuin met multifunctionele berging/werkruimte is dit een ideale woning voor gezinnen en werkenden die ruimte en kwaliteit zoeken.
Indeling
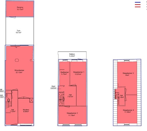
Begane grond
Representatieve entree met hal, modern toilet en trapopgang. De royale woonkamer profiteert van veel daglicht dankzij de brede glazen schuifpui naar de onderhoudsvrije achtertuin. In de tuin bevindt zich een ruime berging die tevens uitstekend als werk- of hobbyruimte kan worden gebruikt.
De luxe woonkeuken is stijlvol afgescheiden van de woonkamer door een glazen stalen deur met kozijn en is uitgevoerd met hoogwaardige inbouwapparatuur en veel bergruimte — een ideale plek voor koken en samenkomen.
Eerste verdieping
Overloop met toegang tot twee ruime slaapkamers en een hoogwaardige badkamer. De badkamer is voorzien van een royale inloopdouche, dubbele designwastafels met verlichte spiegel en een tweede toilet.
Tweede verdieping
Nog eens twee goed bemeten slaapkamers, ideaal als kinder-, werk- of logeerkamers.
Duurzaamheid en comfort
De woning is recent volledig gerenoveerd en verduurzaamd tot energielabel A, wat zorgt voor lagere energielasten en een aangenaam binnenklimaat.
Ligging en bereikbaarheid
De woning ligt in een rustige, karakteristieke straat in Carnisse (Rotterdam-Zuid), een wijk die sterk in ontwikkeling is en bekendstaat om haar groene pleinen en voorzieningen op loopafstand. Winkels, supermarkten, scholen en sportfaciliteiten bevinden zich in de directe omgeving. Ook het Zuiderpark en diverse recreatiemogelijkheden liggen nabij.
De bereikbaarheid is uitstekend: openbaar vervoer (bus/metro) is op korte afstand en zowel het stadscentrum van Rotterdam als uitvalswegen (A15/A16) zijn snel bereikbaar.
Kortom
Een instapklare, energiezuinige gezinswoning met ruimte, luxe en een praktische ligging — klaar voor de volgende bewoners.
________________________________________
For rent: fully renovated and energy-efficient family home (124 m²) with 4 bedrooms and sunny garden – 2e Carnissestraat 19
This fully high-quality renovated and energy-efficient mid-terrace house (energy label A) combines modern comfort with a practical layout and an exceptionally bright living space. With four full-size bedrooms, luxury finishes and a low-maintenance garden with multifunctional storage/workspace, this is an ideal home for families and professionals seeking space and quality.
Layout
Ground floor
Entrance hall with modern toilet and staircase. The spacious living room enjoys abundant natural light thanks to the wide sliding glass doors opening onto the low-maintenance rear garden. The garden features a generous storage unit that can also serve perfectly as a home office or hobby room.
The luxury kitchen is stylishly separated from the living room by a glass-and-steel door and frame. It is generously sized and fitted with high-end built-in appliances and ample storage — ideal for cooking and entertaining.
First floor
Landing with access to two spacious bedrooms and a high-quality bathroom. The bathroom includes a large walk-in shower, double designer washbasins with illuminated mirror and a second toilet.
Second floor
Two additional well-proportioned bedrooms, suitable as children’s rooms, home offices or guest rooms.
Sustainability and comfort
The house has been comprehensively renovated and upgraded to energy label A, ensuring lower energy costs and a comfortable indoor climate.
Location and accessibility
Situated in a quiet, characteristic street in Carnisse (Rotterdam-South), a neighbourhood undergoing significant positive development and known for its green squares and nearby amenities. Shops, supermarkets, schools and sports facilities are within walking distance. The Zuiderpark and various recreational options are also close by.
Accessibility is excellent: public transport (bus/metro) is within short distance, and both Rotterdam city centre and major highways (A15/A16) are quickly reachable.
In brief
A move-in-ready, energy-efficient family home offering space, luxury and a practical location — ready for its next residents.