Description
Wonen met vrij zicht over de Maashaven – licht, ruimte én een kans die je niet wilt missen
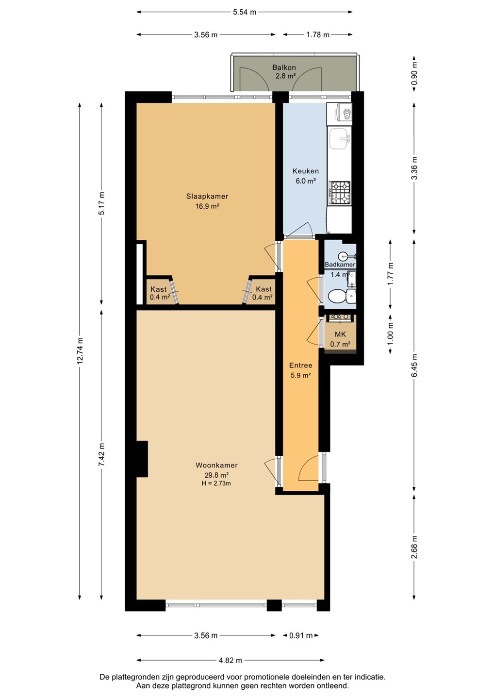
Welkom aan de Putselaan 230 A in Rotterdam – een verrassend ruim en licht 2-kamerappartement van ca. 66 m², gelegen op de eerste etage, met vrij zicht over de Maashaven en een zonnig balkon op het zuiden.
De royale woonkamer aan de voorzijde is een echte eyecatcher. Grote raampartijen zorgen voor een zee aan licht en een levendig, vrij uitzicht over de Maashaven – een uitzicht dat blijft boeien, elke dag opnieuw. Aan de rustige achterzijde vind je de ruime slaapkamer met twee vaste kasten en directe toegang tot het balkon, waar je in alle rust van de zon kunt genieten.
De indeling is praktisch en prettig: vanuit de hal bereik je de badkamer (voorzien van douche en toilet) en de keuken, die eveneens toegang geeft tot het balkon. Een solide basis met volop mogelijkheden om hier jouw ideale woning van te maken.
Waarom dit appartement eruit springt:
Ca. 66 m² woonoppervlakte
Eerste etage – comfortabel en goed bereikbaar
Lichte woonkamer met vrij zicht over de Maashaven
Ruime slaapkamer aan de rustige achterzijde
Zonnig balkon op het zuiden
Slimme indeling met veel potentie
Extra pluspunten
Binnenkort worden het kozijn- en glaswerk vernieuwd – een directe upgrade in comfort en uitstraling. Daarnaast zijn de eerste stappen in verduurzaming en onderhoud al gezet. Je koopt dus niet alleen ruimte, maar ook toekomstbestendigheid.
De omgeving
De Putselaan bevindt zich in een gebied dat sterk in opkomst is en steeds populairder wordt. Op korte afstand liggen de Maashaven, Katendrecht en het bruisende centrum van Rotterdam. Met winkels, horeca, openbaar vervoer en uitvalswegen binnen handbereik woon je hier centraal én praktisch.
Kortom: een licht en ruim appartement met uitzicht, buitenruimte en groeipotentie op een locatie die steeds aantrekkelijker wordt.
Dit is zo’n kans waar je snel bij moet zijn.