Object details

New for rent

For rent: Bargelaan 100, 2333 CW Leiden

€1,850 /mo

Description

NOT FOR STUDENTS! Beautiful, spacious and furnished 2 bedroom apartment of 100 m2 on the Bargelaan in Leiden.
The apartment has a balcony of 7 m2 with spectacular view, separate storage on the 4th floor and its own parking space.
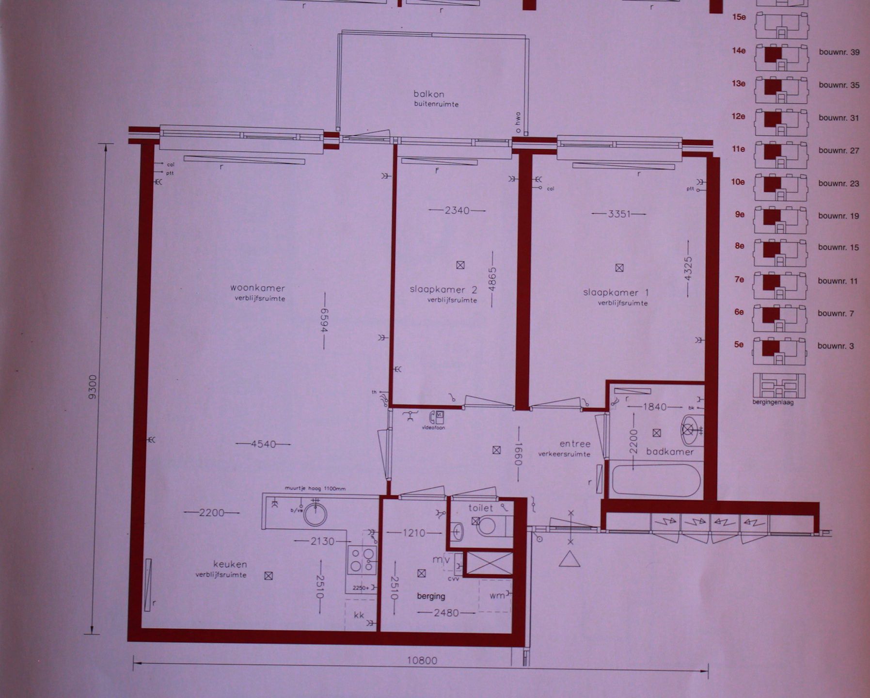
Shared entry with elevator. Entry on the 9th floor (14th level) with hallway and videophone. Large, bright living room of 36 m2 with solid oak parquet floor. Open kitchen of 6 m2 with microwave, dishwasher, fridge and cooker hood. Separate toilet. Tiled bathroom with bath, separate shower and washbasin. Bedroom of 14,5 m2, with a 2-personbed and clothing closet. Bedroom of 11,5 m2 with a 1-personbed and clothing closet. The apartment is very centrally located next to the train station and near the city centre.

Layout

Shared entry with elevator. Entry on the 9th floor (14th level) with hallway and videophone. Large, bright living room of 36 m2 with solid oak parquet floor. Open kitchen of 6 m2 with microwave, dishwasher, fridge and cooker hood. Separate toilet. Tiled bathroom with bath, separate shower and washbasin. Bedroom of 14,5 m2, with a 2-personbed and clothing closet. Bedroom of 11,5 m2 with a 1-personbed and clothing closet. The apartment is very centrally located next to the train station and near the city centre.

Features

Offer
Reference number 03883
Asking price €1,850 per month (furnished, upholstered)
Deposit €3,000
Service costs €300 per month
Furnishing Yes
Furnishing Furnished
Status New for rent
Acceptance By 03 November 2025
Offered since 02 October 2025
Construction
Type of residence Apartment, mezzanine, apartment
Floor 9th floor
Type of construction Existing estate
Construction period 2001
Surfaces and content
Floor Surface 100 m²
Content 220 m³
Layout
Number of floors 1
Number of rooms 3 (of which 2 bedrooms)
Outdoors
Location Near railway station
Energy consumption
Energy certificate A+
Features
Has a storage room Yes
Please contact me

Floor plans

ZonZone

Close

Recently viewed