Beschrijving
Hillevliet 101 A02 – Rotterdam
Ruimte, licht en eindeloze mogelijkheden op een fantastische hoek locatie.
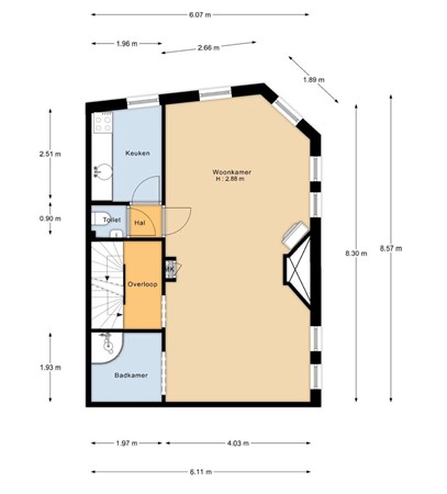
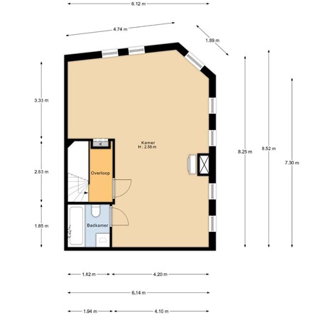
Op de tweede en derde verdieping van een karakteristiek pand bevindt zich deze royale dubbele bovenwoning van ruim 100 m². Een woning met potentie, en dat voel je direct zodra je binnenstapt. Voor de koper met visie ligt hier een unieke kans om een spectaculair 2- of 3-slaapkamer appartement te realiseren, volledig naar eigen smaak.
Dankzij de hoekligging aan de Hillevliet en de Lange Hilleweg profiteert de woning van een uitzonderlijke hoeveelheid daglicht. De vele ramen aan twee zijden zorgen voor een open en ruimtelijk gevoel en bieden een vrij uitzicht over de groene stroken en waterpartijen langs de straat. Een verrassend groen decor midden in de stad.
Een belangrijk voordeel is dat de woning reeds is voorzien van kunststof kozijnen met dubbele beglazing, wat een solide basis vormt voor de verdere modernisering.
De indeling biedt volop kansen om een bijzonder woonconcept te creëren. Zo kan de keuken eenvoudig worden geopend naar de woonkamer, waardoor er ruimte ontstaat voor een riante en sfeervolle woonkeuken – dé plek waar koken, eten en samenzijn samenkomen.
De badkamer dient volledig gerenoveerd te worden, wat juist de mogelijkheid biedt om hier een moderne en luxe ruimte van te maken die perfect aansluit op jouw woonstijl.
De bovenste verdieping leent zich uitstekend voor meerdere slaapkamers, een werkruimte of een royale master bedroom. Daarnaast bestaat er mogelijk zelfs de kans om een ruim dakterras te realiseren, waarmee je een fantastische buitenruimte toevoegt aan deze stadswoning (uiteraard afhankelijk van de benodigde vergunningen).
Waarom dit een buitenkans is:
• Dubbele bovenwoning verdeeld over 2e en 3e etage
• Ruim 100 m² woonoppervlakte
• Gelegen op de hoek Hillevliet / Lange Hilleweg
• Veel lichtinval door ramen aan twee zijden
• Vrij uitzicht over groen en waterpartijen
• Kunststof kozijnen met dubbele beglazing
• Keuken te openen naar woonkamer voor een riante woonkeuken
• Mogelijkheid tot 2 of 3 slaapkamers
• Badkamer naar eigen wens volledig te vernieuwen
• Potentie voor een ruim dakterras (vergunningplicht)
Dit is geen standaard appartement, maar een woning waar je echt iets bijzonders van kunt maken. Met de juiste visie en aanpak transformeer je deze dubbele bovenwoning tot een ruim, licht en modern stads appartement met karakter.
Hillevliet 101 A02 – voor wie de mogelijkheden ziet en zijn eigen droomwoning wil creëren.
** De VVE is in oprichting en op korte termijn worden daar de stukken van verwacht.
** De impressie foto's zijn gegenereerd meet gebruik van AI