Beschrijving

Veel ruimte, veel licht en direct te betrekken – verrassend ruim appartement met extra kamer!

Zoek je als starter vooral meters, licht en een woning waar je zó in kunt? Dan is Dordtselaan 198D precies zo’n appartement waar je even stil van wordt. Verdeeld over twee verdiepingen, met twee ruime slaapkamers én een aparte werk-/studeerkamer, biedt deze woning uitzonderlijk veel leefruimte voor deze prijsklasse. Praktisch ingedeeld, instapklaar en centraal gelegen in Rotterdam-Zuid.

Indeling

Entree
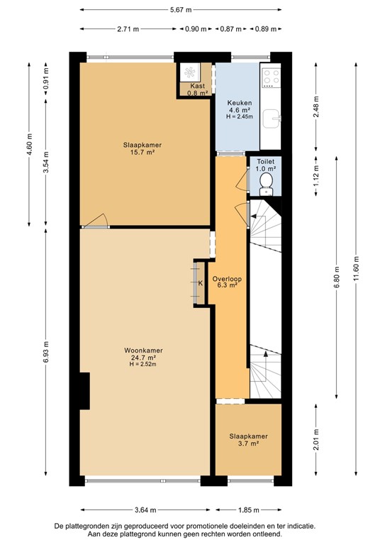
Je komt binnen via een afgesloten portiek met elektrisch hek. De woning is bereikbaar op de eerste verdieping; via de interne trap ga je naar de tweede verdieping waar het wonen begint.

Woonverdieping
De woonkamer is opvallend licht en ruim opgezet. Hier creëer je moeiteloos meerdere zones: een comfortabele zithoek, een eethoek én nog ruimte over.
De open keuken is netjes en compleet uitgevoerd met onder andere een inductiekookplaat, vaatwasser en afzuigkap — koken zonder concessies.

Daarnaast vind je op deze verdieping:

een aparte werk-/studeerkamer (perfect voor thuiswerken of hobby’s),

een ruime slaapkamer,

en een separaat toilet.

Slaapverdieping
Via de dubbele trap bereik je de bovenste verdieping met een zeer royale master bedroom.
De badkamer is praktisch ingericht met douche, wastafel en aansluiting voor de wasmachine. Ook de CV-opstelling bevindt zich hier.

Waarom dit appartement ideaal is voor starters

 Veel vierkante meters, verdeeld over twee woonlagen
 Instapklaar: direct wonen, geen verbouwingen nodig
 Twee ruime slaapkamers + aparte werk-/studeerkamer
 Moderne keuken met inbouwapparatuur
 Kunststof kozijnen en dubbele beglazing
 Centrale ligging met alle voorzieningen dichtbij

De omgeving

De Dordtselaan ligt in de levendige wijk Feijenoord. Supermarkten, winkels en eetgelegenheden zijn op loopafstand. Voor ontspanning wandel je zo het Zuiderpark in. Metro en tram zijn dichtbij en met de auto ben je via de A15, A16 of A29 snel onderweg. Stedelijk wonen met alles binnen handbereik.

Enthousiast?

Dit appartement biedt ruimte, licht en gemak — precies wat veel starters zoeken, maar zelden vinden.
Kom kijken en ervaar zelf hoeveel wooncomfort Dordtselaan 198D te bieden heeft.

Let op: enkele foto’s zijn voorzien van AI-gegenereerd meubilair ter inspiratie.

Kenmerken