Beschrijving

Instapklare en duurzaam gerenoveerde bovenwoning met eigen entree en energielabel A!

Aan de levendige Carnisselaan in Rotterdam bevindt zich deze volledig gerenoveerde en verduurzaamde bovenwoning, verdeeld over de eerste en tweede verdieping en voorzien van een eigen entree op de begane grond. De woning is de afgelopen jaren met zorg gemoderniseerd en biedt een comfortabele combinatie van ruimte, licht en hedendaags wooncomfort. Dankzij onder andere een warmtepomp, volledig dubbel glas en kunststof kozijnen beschikt de woning over een energielabel A, wat zorgt voor lage energielasten en toekomstbestendig wonen.

Wonen

Via de eigen entree op de begane grond bereikt u de woning. Op de eerste verdieping bevindt zich de lichte woonkamer met halfopen keuken. Door de grote hoeveelheid ramen geniet deze verdieping van een prettige lichtinval en een ruimtelijk gevoel.

De luxe keuken is modern uitgevoerd en voorzien van diverse inbouwapparatuur, waardoor koken hier zowel praktisch als aangenaam is.

Sanitair

De woning beschikt over een nette, moderne badkamer met:

douche

toilet

wastafel met meubel

handdoekenradiator

Daarnaast is op de overloop van de tweede verdieping nog een extra wastafel met meubel en spiegel geplaatst, wat extra gemak biedt.

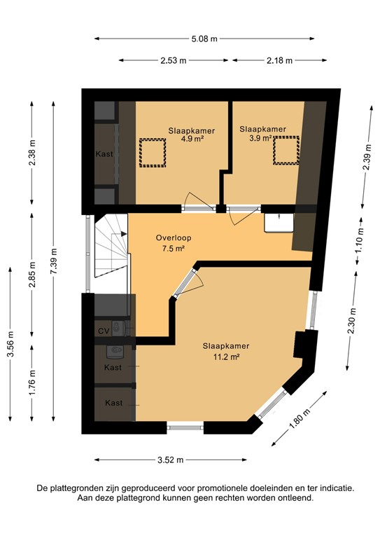
Slapen en werken

Middels een vaste trap bereikt u de tweede verdieping. Hier bevinden zich:

een ruime hoofdslaapkamer

een tweede, kleinere slaapkamer

een extra werk- of studeerkamer, ideaal voor thuiswerken

De overloop is tevens voorzien van een aansluiting voor de wasmachine.

Duurzaamheid

De woning is de afgelopen jaren grondig aangepakt en verduurzaamd. Zo is onder andere aanwezig:

Energielabel A

Hybride Warmtepomp

Volledig dubbel glas

Kunststof kozijnen

Kunststof Velux dakramen in de kleinere kamers

Dit zorgt voor comfortabel wonen met lage energiekosten.

Omgeving

De woning ligt in de populaire wijk Carnisse, een buurt die de laatste jaren sterk in ontwikkeling is en steeds geliefder wordt bij starters en jonge gezinnen. In de directe omgeving vindt u diverse winkels, supermarkten, horeca en voorzieningen.

Voor ontspanning en groen ligt het Zuiderpark op korte afstand, ideaal voor een wandeling, sporten of recreëren.

Bereikbaarheid

De bereikbaarheid is uitstekend. Openbaar vervoer (tram en bus) bevindt zich op loopafstand en biedt een snelle verbinding naar het centrum van Rotterdam. Daarnaast zijn belangrijke uitvalswegen zoals de A15 en A29 eenvoudig bereikbaar, waardoor ook omliggende steden goed te bereiken zijn.

Kortom: een moderne, duurzame en instapklare bovenwoning met eigen entree, veel licht en een praktische indeling, gelegen op een centrale locatie in Rotterdam.

Een ideale woning voor wie comfortabel wil wonen met alle voorzieningen binnen handbereik.

Kenmerken