Description

Instapklare dubbele bovenwoning op toplocatie in Schiedam

Ben je op zoek naar een lichte, moderne woning waar je zó in kunt trekken? Dan is De Singel 163 A02 precies wat je zoekt. Deze royale dubbele bovenwoning is in 2022 volledig gerenoveerd en combineert ruimte, comfort en een fantastische ligging – midden in het hart van Schiedam, met alles binnen handbereik.

Op nog geen 150 meter van station Schiedam Centrum stap je binnen enkele minuten in de trein naar Rotterdam of Den Haag. Ook het gezellige stadscentrum met winkels, horeca en historische charme ligt op loopafstand. Dankzij de nabijheid van de A4 en A20 ben je bovendien snel onderweg richting de rest van de Randstad.

Indeling

Tweede verdieping
Bij binnenkomst word je direct verrast door de lichte doorzonwoonkamer met grote raampartijen en een moderne afwerking. De open keuken sluit hier naadloos op aan en is voorzien van strakke inbouwapparatuur – ideaal voor wie graag kookt en toch in contact wil blijven met de woonkamer.

Via de woonkamer bereik je het ruime balkon/terras, een heerlijke plek om te genieten van de zon of een rustige avond buiten. Verder vind je op deze verdieping een ruime hal met separaat toilet en garderoberuimte.

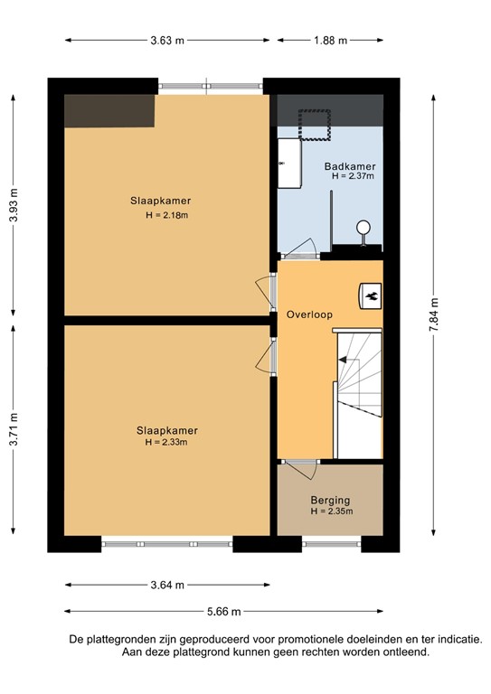
Derde verdieping
De bovenste etage biedt twee royale slaapkamers – één aan de voorzijde en één aan de achterzijde – waardoor er volop privacy en flexibiliteit is in gebruik (denk aan werk-, logeer- of kinderkamer). De badkamer is voorzien van een inloopdouche, wastafelmeubel en handdoekradiator. Daarnaast is er een praktische wasruimte, netjes weggewerkt en functioneel ingericht.

De woning is bereikbaar via een gedeelde entree met slechts één ander appartement.

Belangrijkste kenmerken

Woonoppervlak ca. 90 m²

Volledig gerenoveerd in 2022

Ruime doorzonwoonkamer met veel licht

Balkon/terras aangrenzend aan de woonkamer

Instapklaar met moderne afwerking

Op loopafstand van station Schiedam Centrum

Dichtbij centrum en uitvalswegen (A4/A20)

Gedeelde opgang met één ander appartement

Kortom: een eigentijds appartement op een toplocatie – perfect voor wie comfortabel wil wonen met de stad letterlijk om de hoek.

Plan snel een bezichtiging en ervaar zelf de ruimte, lichtinval en fijne sfeer van deze woning!

** Project notaris is reeds aangsteld.

* Foto's met meubels zijn AI- gegenereerd.

Features